Maddison

Boulette

Interior Design

I am a Winnipeg Based Junior Interior Designer, influenced by both my cultural background and Scandinavian principles, I value clarity and restraint, creating interiors that feel calm, connected, and functional.

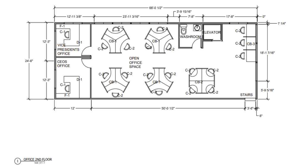
Zara Headquarters

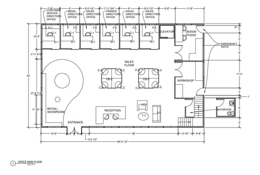
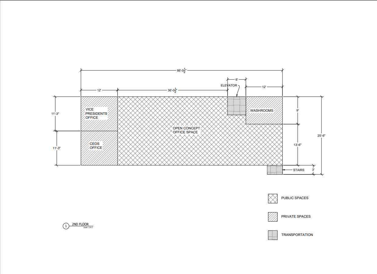
The aim for this project was to redesign an office space that would boost both productivity and moral for guests and employees a like. We were looking for something that was functional but helped to bloom creativity. Doing so We focused on natural lighting (emphasizing on the big store front windows), natural materials, modern furniture that was adaptable helping t...

The aim for this project was to redesign an office space that would boost both productivity and moral for guests and employees a like. We were looking for something that was functional but helped to bloom creativity. Doing so We focused on natural lighting (emphasizing on the big store front windows), natural materials, modern furniture that was adaptable helping t...

The aim for this project was to redesign an office space that would boost both productivity and moral for guests and employees a like. We were looking for something that was functional but helped to bloom creativity. Doing so We focused on natural lighting (emphasizing on the big store front windows), natural materials, modern furniture that was adaptable helping to keep this space timeless and a neutral color pallet allowing the clothing/product designs to be the main buyers focal point.

Read more

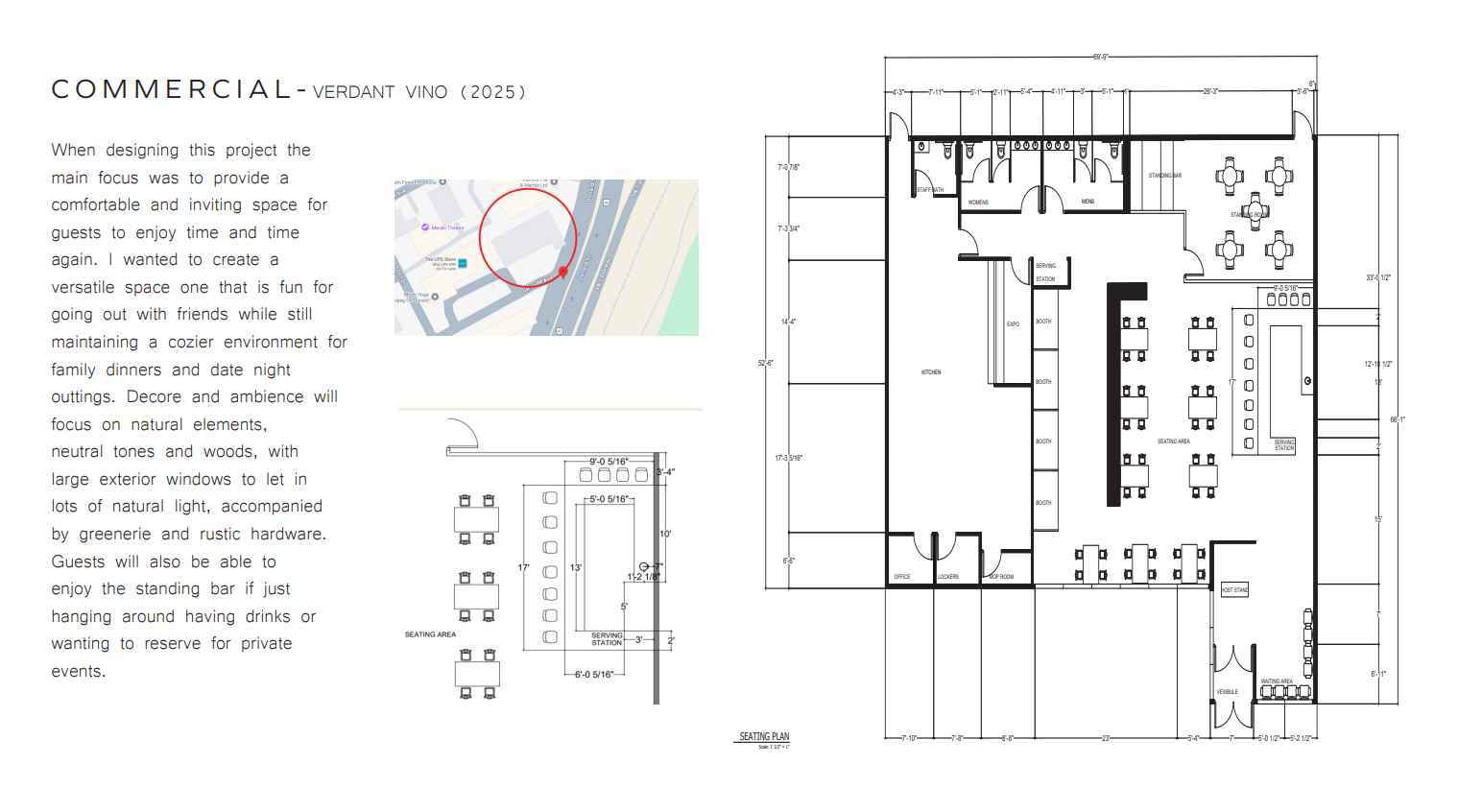
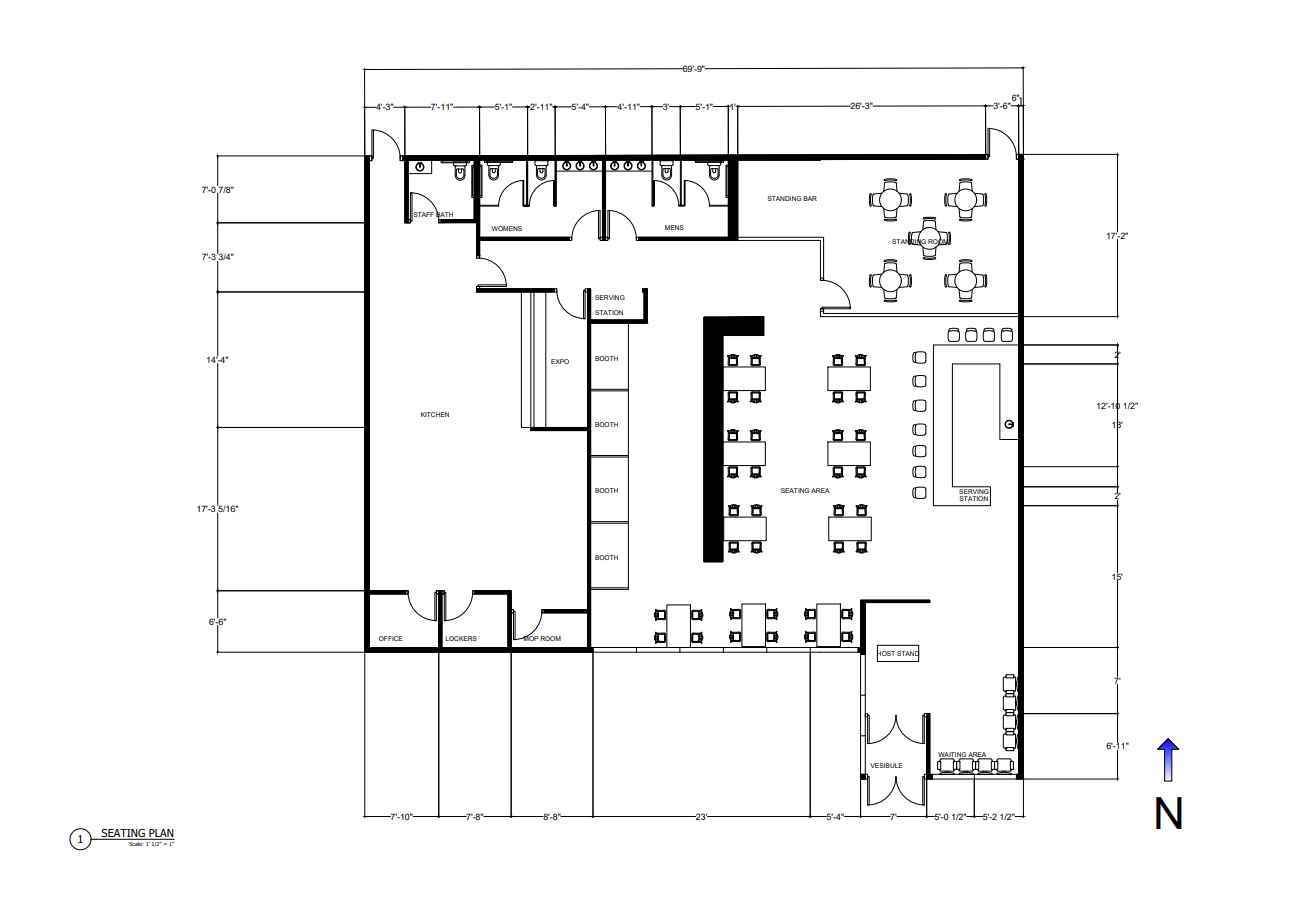
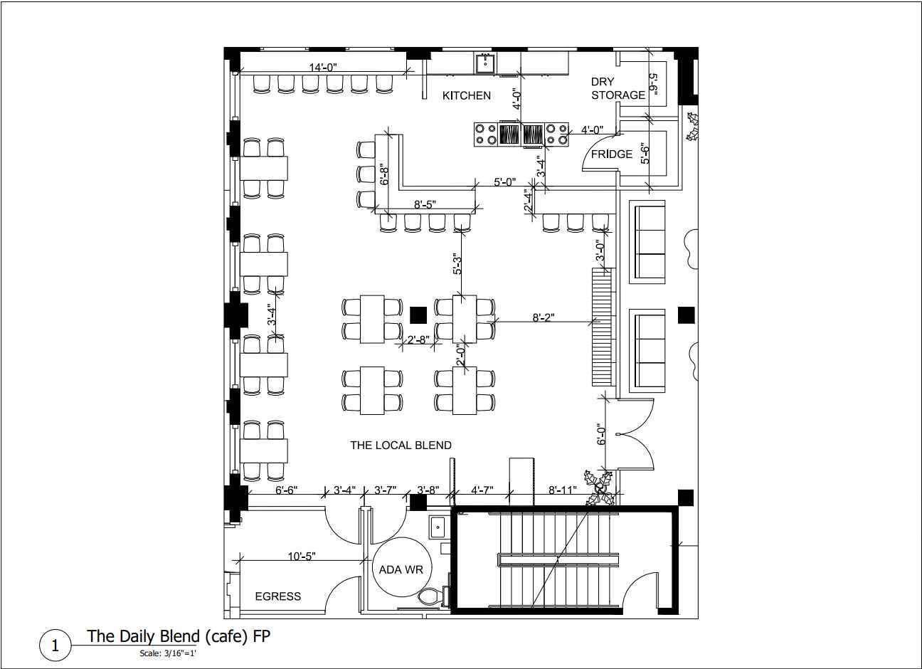
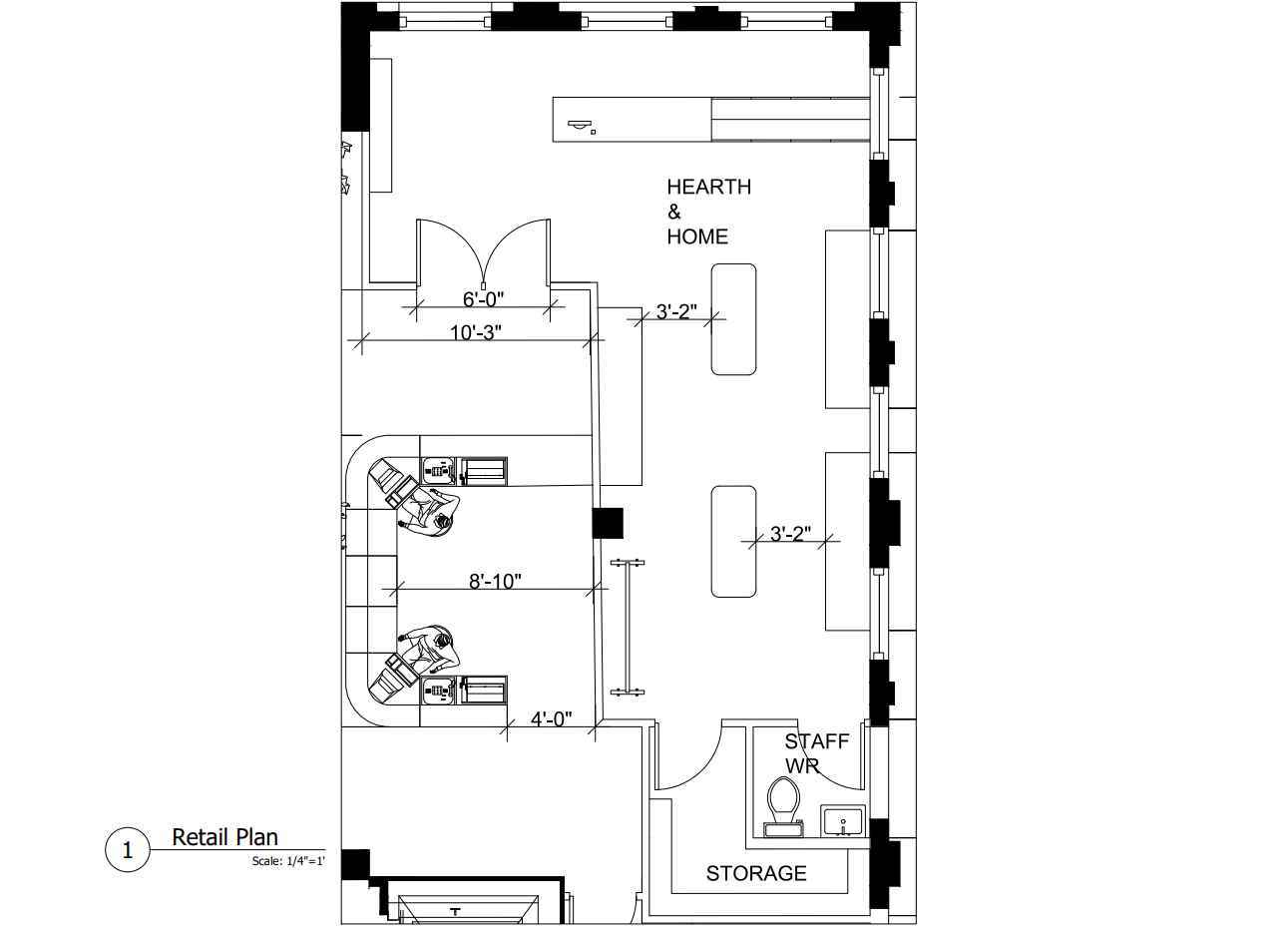
Verdant Vino

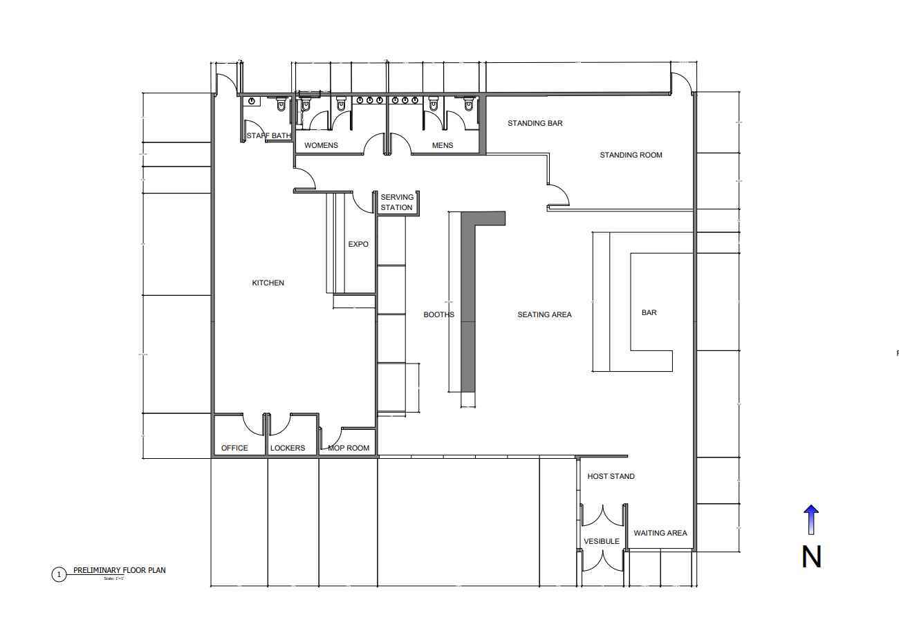
When designing this project the main focus was to provide a comfortable and inviting space for guests to enjoy time and time again. I wanted to create a versatile space, one that is fun for going out with friends while still maintaining a cozier environment for family dinners or date night outings. Decor and ambience will focus on natural elements, neutral tones an...

When designing this project the main focus was to provide a comfortable and inviting space for guests to enjoy time and time again. I wanted to create a versatile space, one that is fun for going out with friends while still maintaining a cozier environment for family dinners or date night outings. Decor and ambience will focus on natural elements, neutral tones an...

When designing this project the main focus was to provide a comfortable and inviting space for guests to enjoy time and time again. I wanted to create a versatile space, one that is fun for going out with friends while still maintaining a cozier environment for family dinners or date night outings. Decor and ambience will focus on natural elements, neutral tones and woods, with large exterior windows to let in lots of natural light, accompanied by greenery and rustic hardware. Guests will also be able to enjoy the standing bar if just hanging around having drinks or wanting to reserve for private events.

Read more

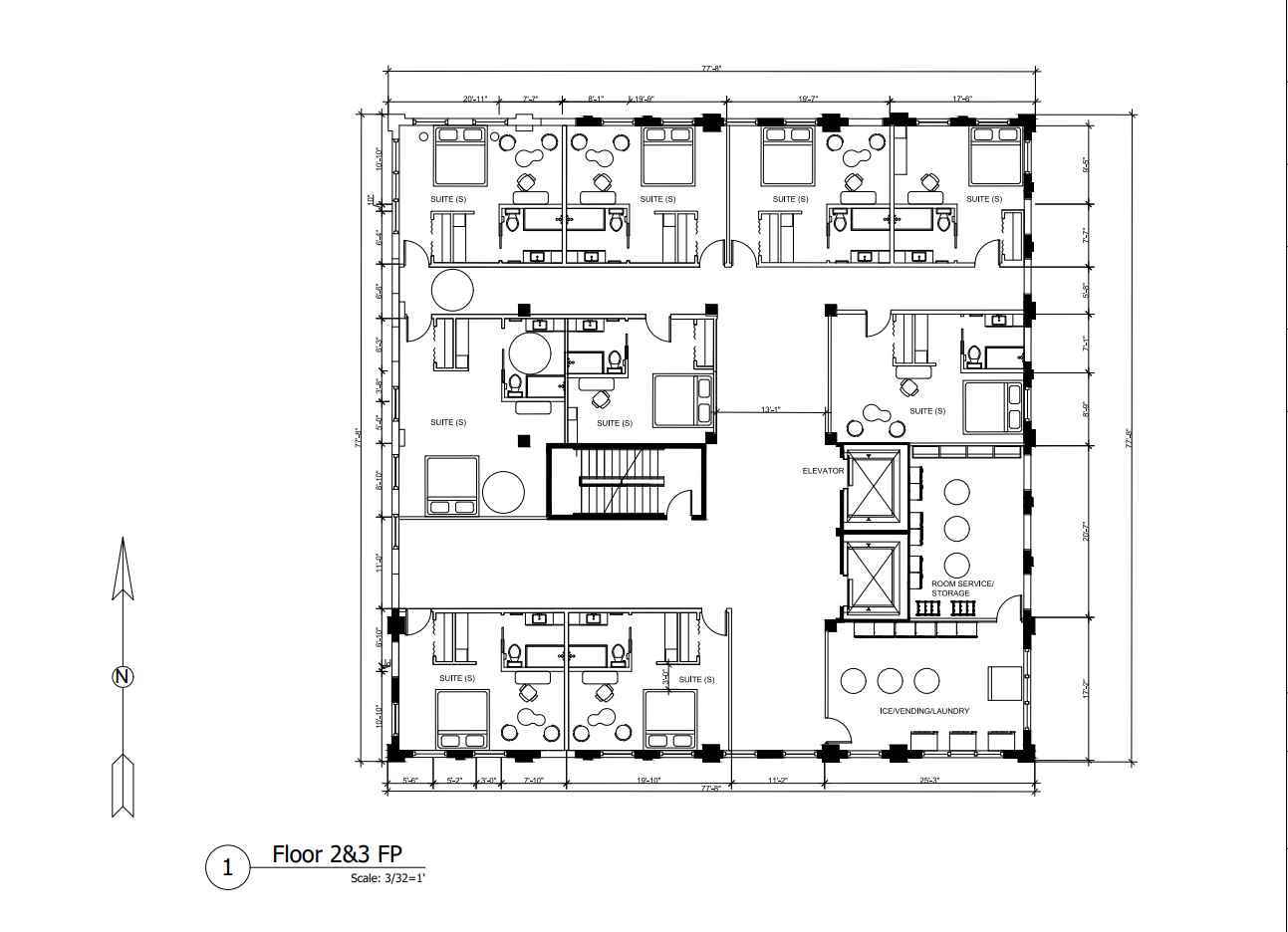
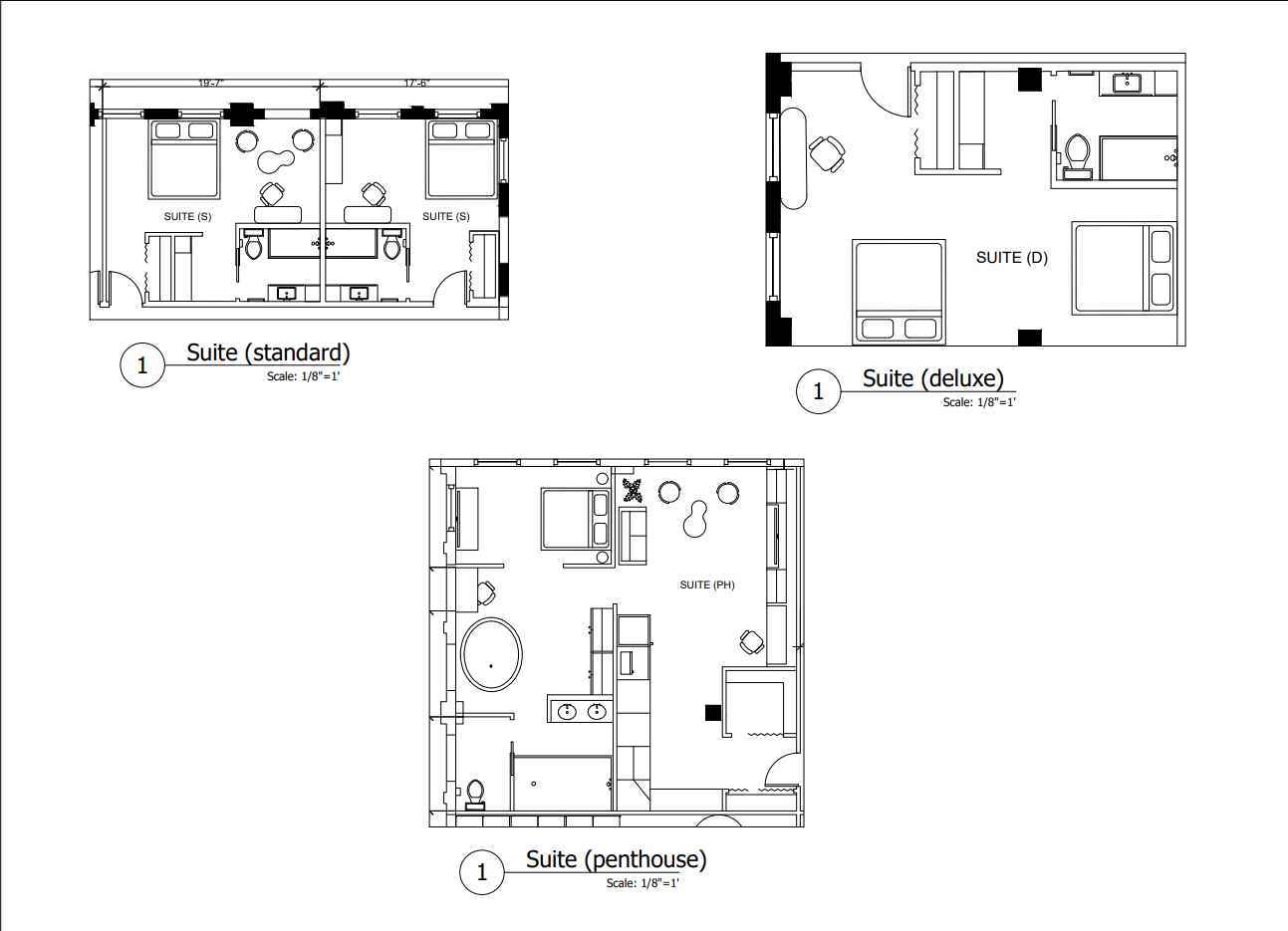
The Happy Camper Co.

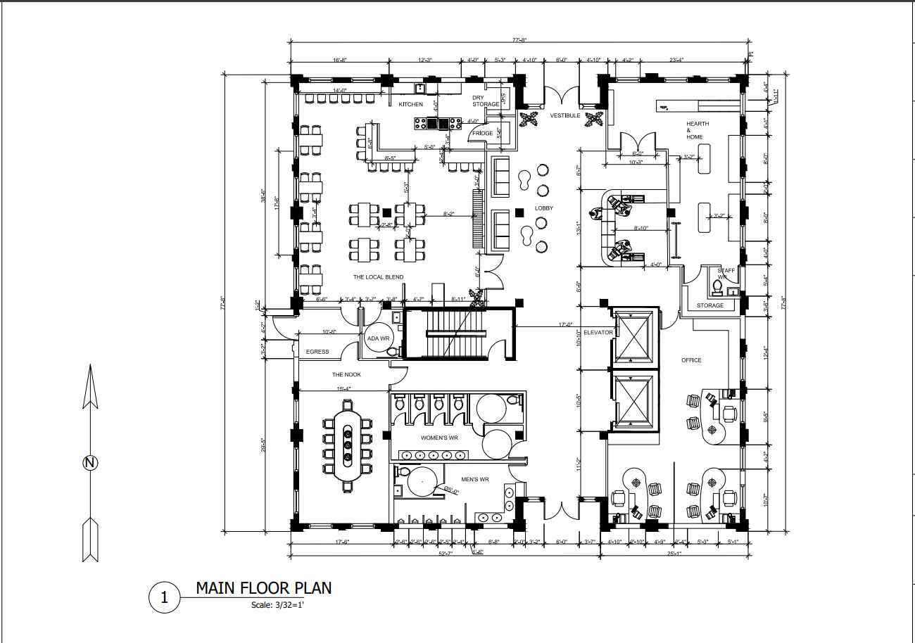
I wanted to create open concept rooms with large windows helping to promote natural light and warmth in the summer months. My design would focus on eco- friendly furnishings and materials/textiles throughout the design helping to add a deep layer of sustainability to guest' experiences here. I also added Warm neutral tones accompanied by organic wood slats to help...

I wanted to create open concept rooms with large windows helping to promote natural light and warmth in the summer months. My design would focus on eco- friendly furnishings and materials/textiles throughout the design helping to add a deep layer of sustainability to guest' experiences here. I also added Warm neutral tones accompanied by organic wood slats to help...

I wanted to create open concept rooms with large windows helping to promote natural light and warmth in the summer months. My design would focus on eco- friendly furnishings and materials/textiles throughout the design helping to add a deep layer of sustainability to guest' experiences here. I also added Warm neutral tones accompanied by organic wood slats to help tie the design together.

Read more

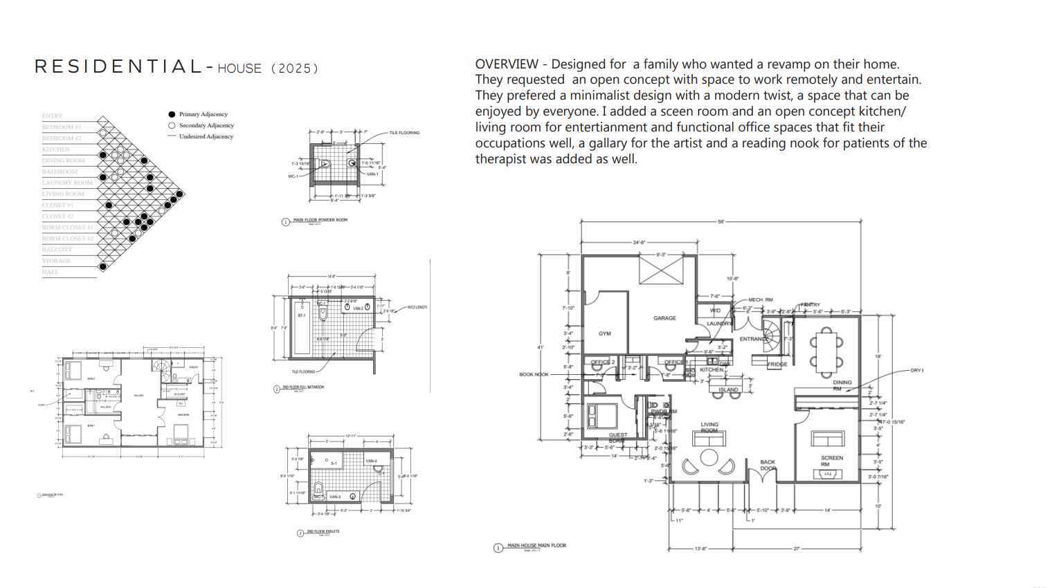
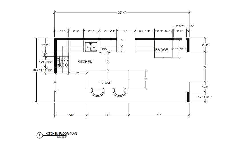
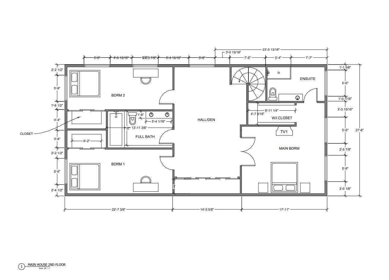
Residential Home

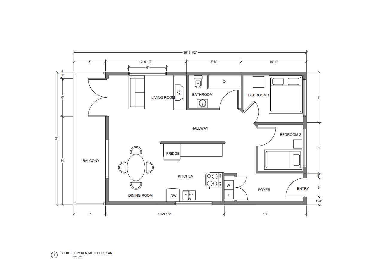
This designed was created for a family who wanted a revamp on their home. They requested an open concept with space to work remotely and entertain. They preferred a minimalist design with a modern twist, a space that can be enjoyed by everyone. I added a screen room and an open concept kitchen/living room for entertainment and functional office spaces that fit thei...

This designed was created for a family who wanted a revamp on their home. They requested an open concept with space to work remotely and entertain. They preferred a minimalist design with a modern twist, a space that can be enjoyed by everyone. I added a screen room and an open concept kitchen/living room for entertainment and functional office spaces that fit thei...

This designed was created for a family who wanted a revamp on their home. They requested an open concept with space to work remotely and entertain. They preferred a minimalist design with a modern twist, a space that can be enjoyed by everyone. I added a screen room and an open concept kitchen/living room for entertainment and functional office spaces that fit their occupations(artist and psychologist) well. The wife requested a space to showcase her art so I added a gallery near her office/studio space and a reading nook for patients of the husband was added as well. The family also requested a short term rental home (Airbnb) be added to their property as well.

Read more

Maddison Boulette (2026)

Maddison Boulette Portfolio (2026)

Would you like to request more information?

Click on the button below and we'll get back to you as soon as possible.

Get in Touch with Us