Emily

Ganzeveld

Interior Design

Emerging interior designer shaping purposeful, detail‑driven spaces. I combine creativity with technical clarity to deliver designs that feel intentional and grounded.

LARGE RESIDENTIAL HOUSE PACKAGE

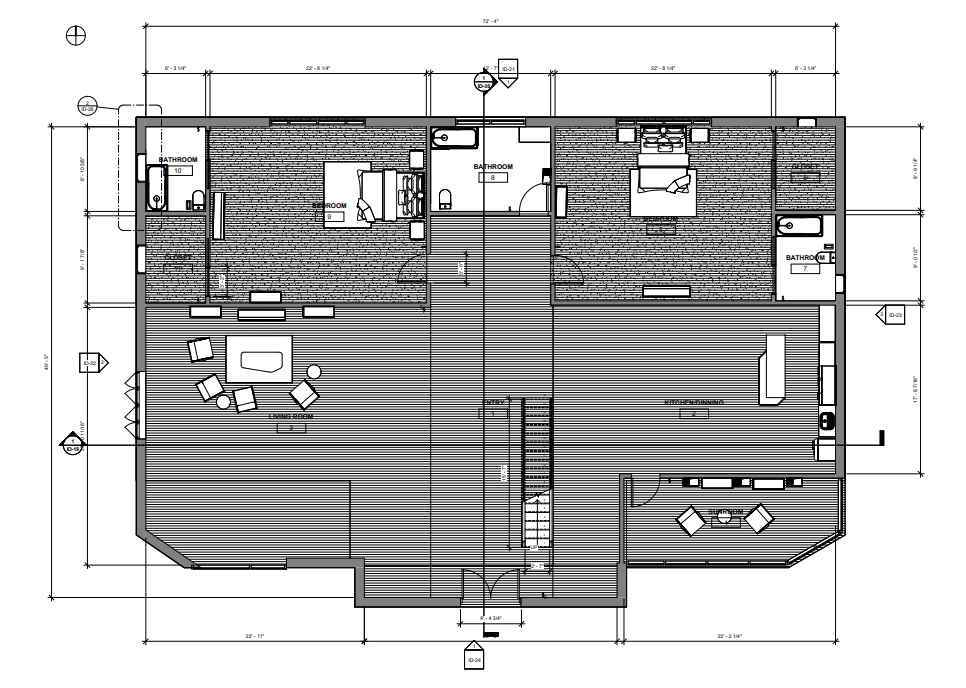
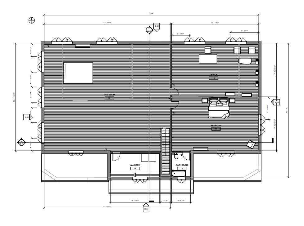
This project focuses on a full residential house package, including floor plans, sections, elevations, and technical details. The goal was to create a functional, family‑friendly layout with clean circulation and strong zoning. The design emphasizes natural light, open living spaces, and practical room placement to support everyday living. This project demonstrate...

This project focuses on a full residential house package, including floor plans, sections, elevations, and technical details. The goal was to create a functional, family‑friendly layout with clean circulation and strong zoning. The design emphasizes natural light, open living spaces, and practical room placement to support everyday living. This project demonstrate...

This project focuses on a full residential house package, including floor plans, sections, elevations, and technical details. The goal was to create a functional, family‑friendly layout with clean circulation and strong zoning. The design emphasizes natural light, open living spaces, and practical room placement to support everyday living. This project demonstrates my technical drafting skills, attention to detail, and understanding of residential design standards.

Read more

INTERIOR DESIGN PORTFOLIO

A selection of projects that reflect my growth as a designer. This portfolio highlights my technical strength, concept development, and commitment to creating meaningful, functional spaces.

Would you like to request more information?

Click on the button below and we'll get back to you as soon as possible.

Get in Touch with Us