Hussein

Kiingi

Architectural Design Technology

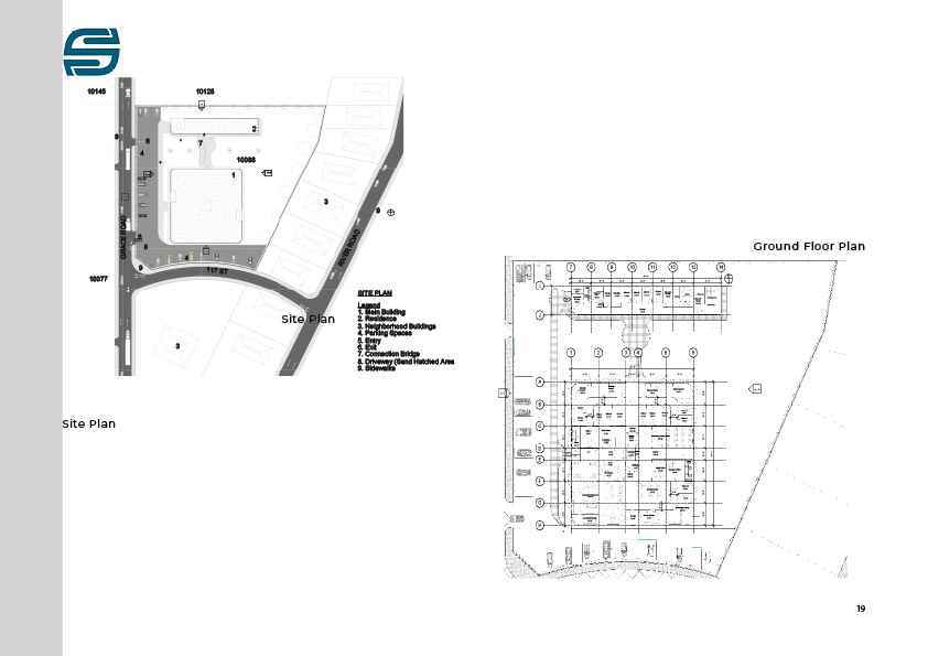
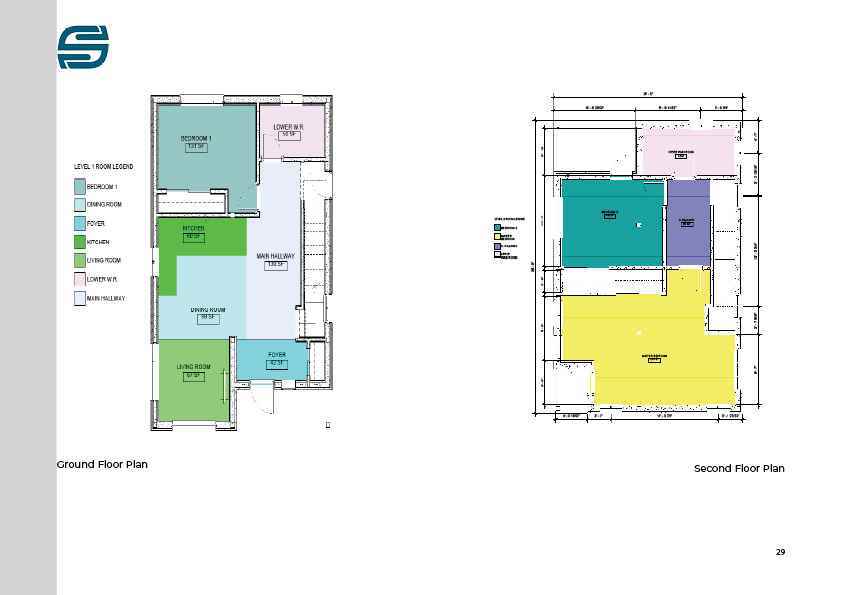
Hello, my name is Hussein Kiingi, a ADT graduate from VCAD. I have interest in designing tall buildings. I believe that verticality offers a relatively viable solution for affordable housing using a small footprint.

Hussein Kiingi's Portfolio

Portfolio for presentation

Would you like to request more information?

Click on the button below and we'll get back to you as soon as possible.

Get in Touch with Us