Hannah

Grothe

Interior Design

I am a Creative that's great at dealing with high stress environment's, Great at teamwork, willing to learn and adapt in serious situations, I implement Nature into projects, Overall friendly with everyone and serious with work.

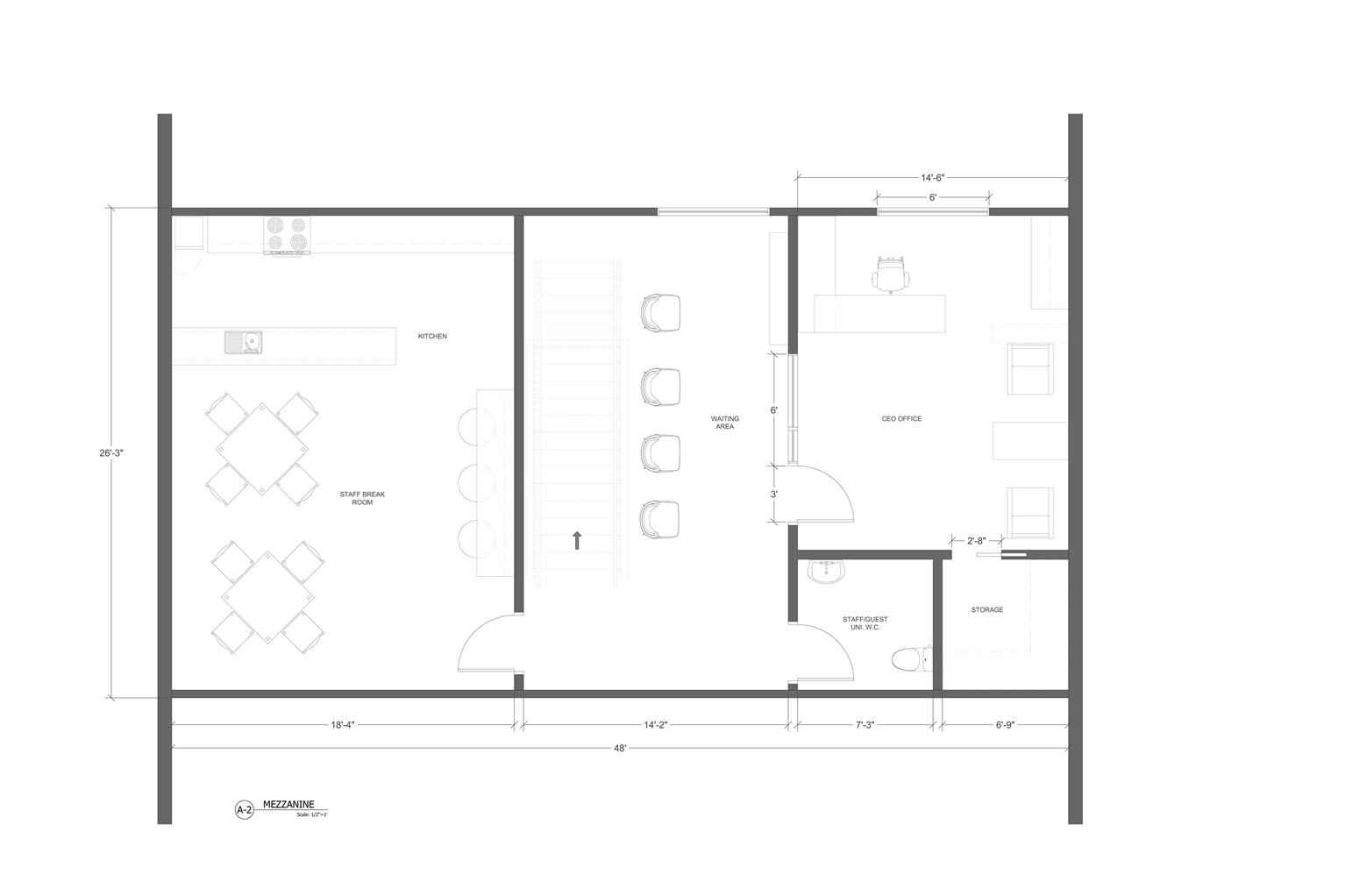
Office Design

This project utilizes the space to its fullest, making it efficient and coherent for its displays and work efficiency. While this building is primarily a office having a small shop will provide some profits and have an impact on marketing thanks to our small tours provided in the shop! And having the lounge will allow comfort to both the staff for a change...

This project utilizes the space to its fullest, making it efficient and coherent for its displays and work efficiency. While this building is primarily a office having a small shop will provide some profits and have an impact on marketing thanks to our small tours provided in the shop! And having the lounge will allow comfort to both the staff for a change...

This project utilizes the space to its fullest, making it efficient and coherent for its displays and work efficiency. While this building is primarily a office having a small shop will provide some profits and have an impact on marketing thanks to our small tours provided in the shop! And having the lounge will allow comfort to both the staff for a change of pace and the guest for wating for a meeting.

Read more

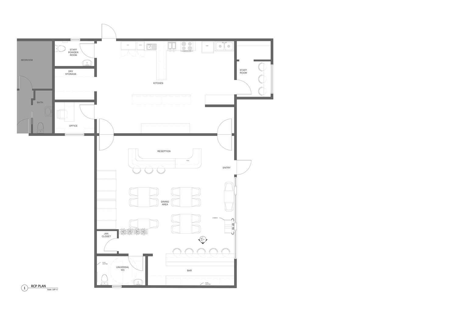
Resturant Design

“ABENDESSEN MOTEL“ Is a Motel Dinner that provides sailors and families a time of relaxation and healing, with some traditional and seasonal dishes. This space provides a warmth and fun, “A HOME AWAY FROM HOME” feel. This Dinner has a retro earthy theme so people can feel at home and in nature at the same time!

Eco House

This is an Eco design for a Residential house that shows how you can always choose a green option when it comes to selecting materials for a home. The theme of this house is calm and warm while being within nature that respects the home owners privacy for the whole family. While thinking of the color pallate for this project I got inspired by eclectic Englis...

This is an Eco design for a Residential house that shows how you can always choose a green option when it comes to selecting materials for a home. The theme of this house is calm and warm while being within nature that respects the home owners privacy for the whole family. While thinking of the color pallate for this project I got inspired by eclectic Englis...

This is an Eco design for a Residential house that shows how you can always choose a green option when it comes to selecting materials for a home. The theme of this house is calm and warm while being within nature that respects the home owners privacy for the whole family. While thinking of the color pallate for this project I got inspired by eclectic English styled homes.

Read more

COB BEACH HOUSE

This Cob house unit was inspired by organic shapes and materials, Unit A is the main house and Unit B is the guest house while Unit C is a pool house at the back of the main house for relaxation and a recreational space for everyone. This project displays what organic shapes can do for house designs!

Would you like to request more information?

Click on the button below and we'll get back to you as soon as possible.

Get in Touch with Us