Helena

Biron

Interior Design

I became an interior designer because I believe spaces can shape healthier, more sustainable lives. My children are my greatest inspiration, as one day they’ll inherit the planet we shape.

Helena Biron's Interior Design Portfolio

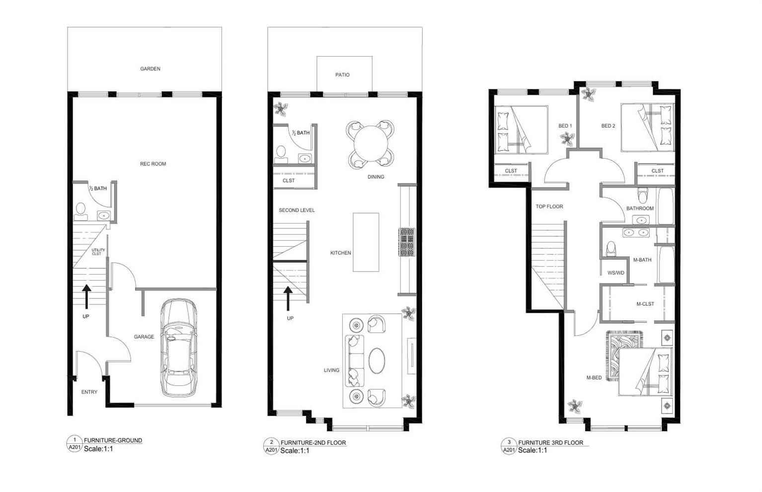
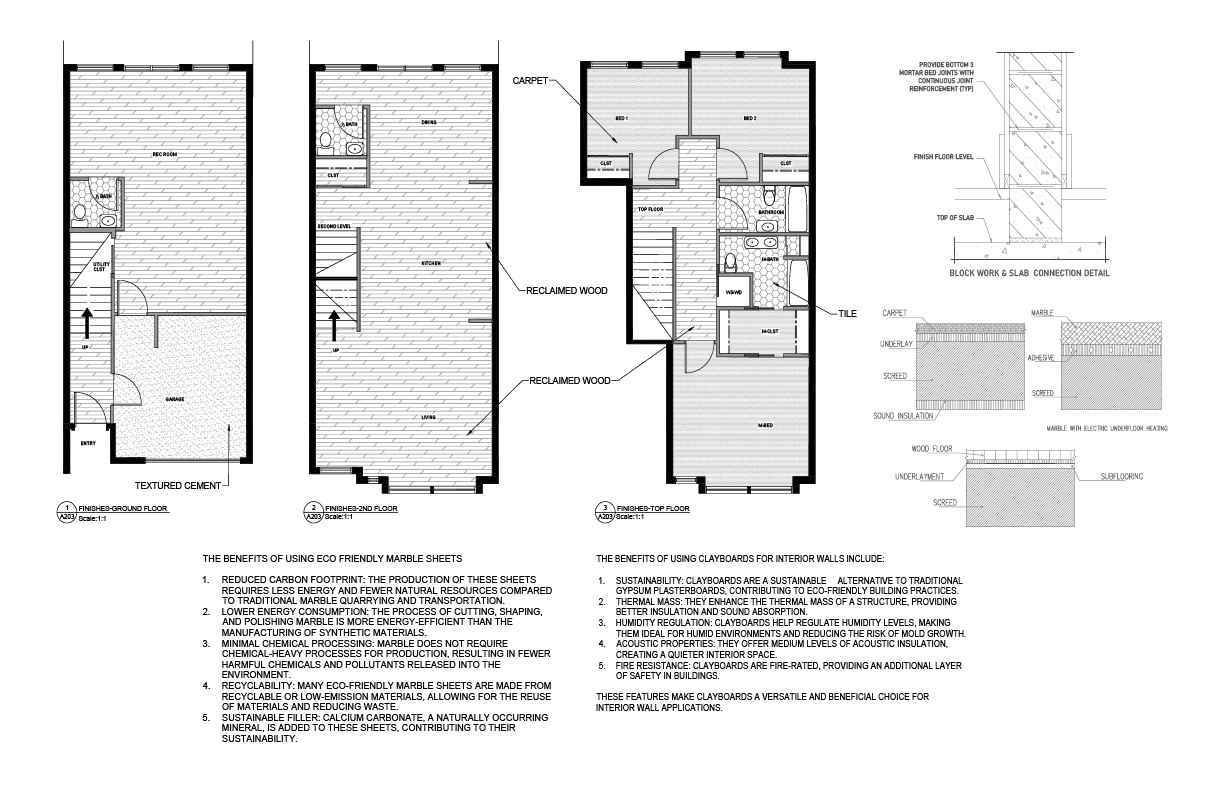
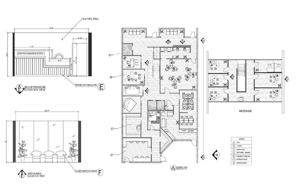
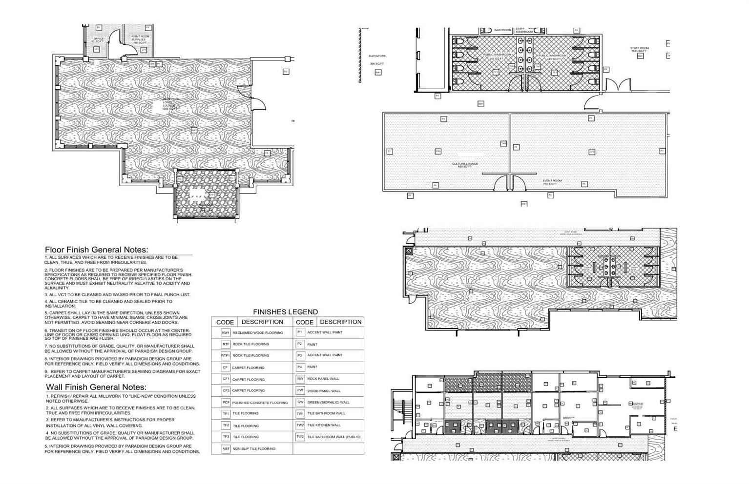
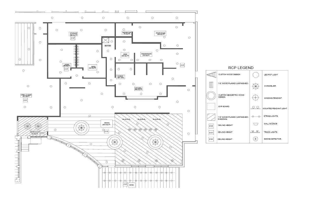
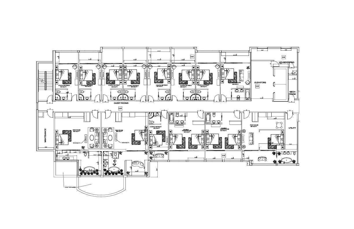
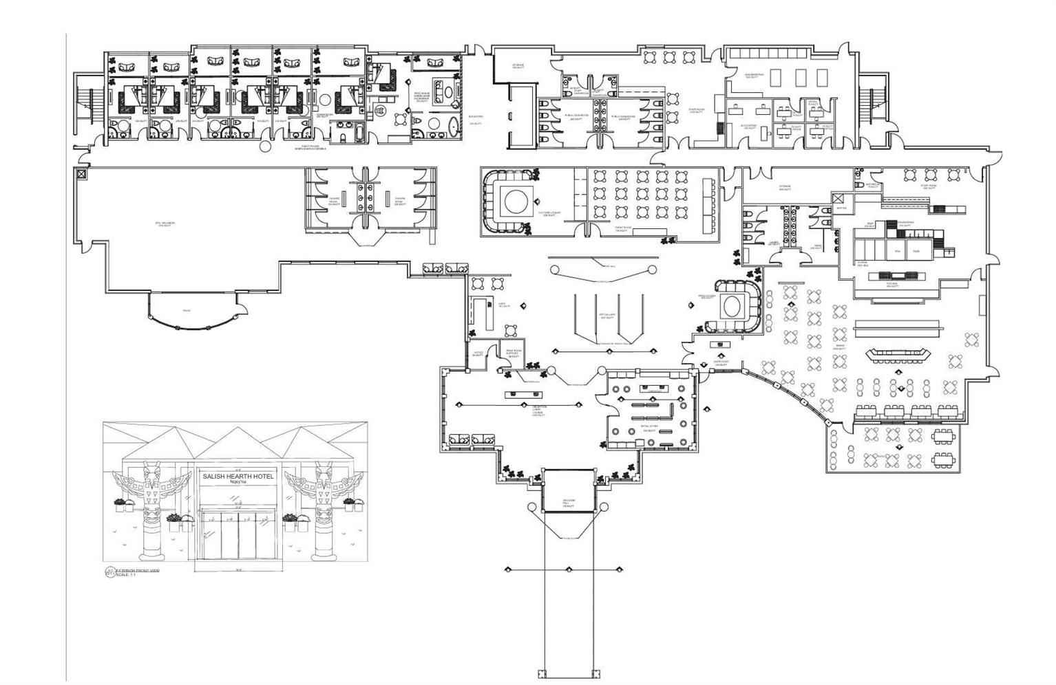
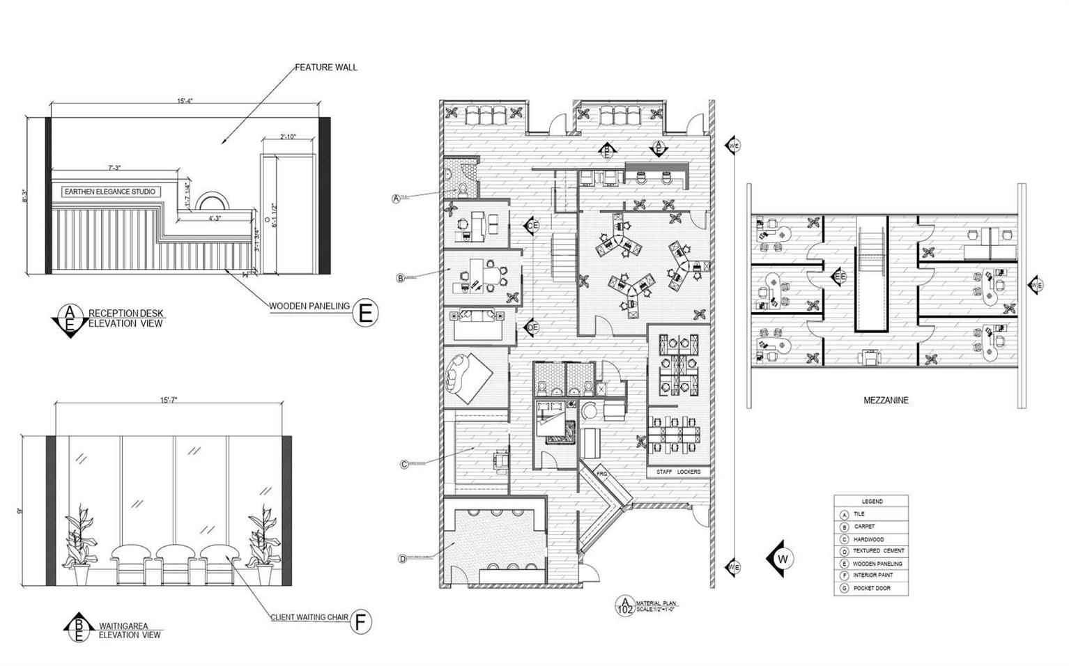
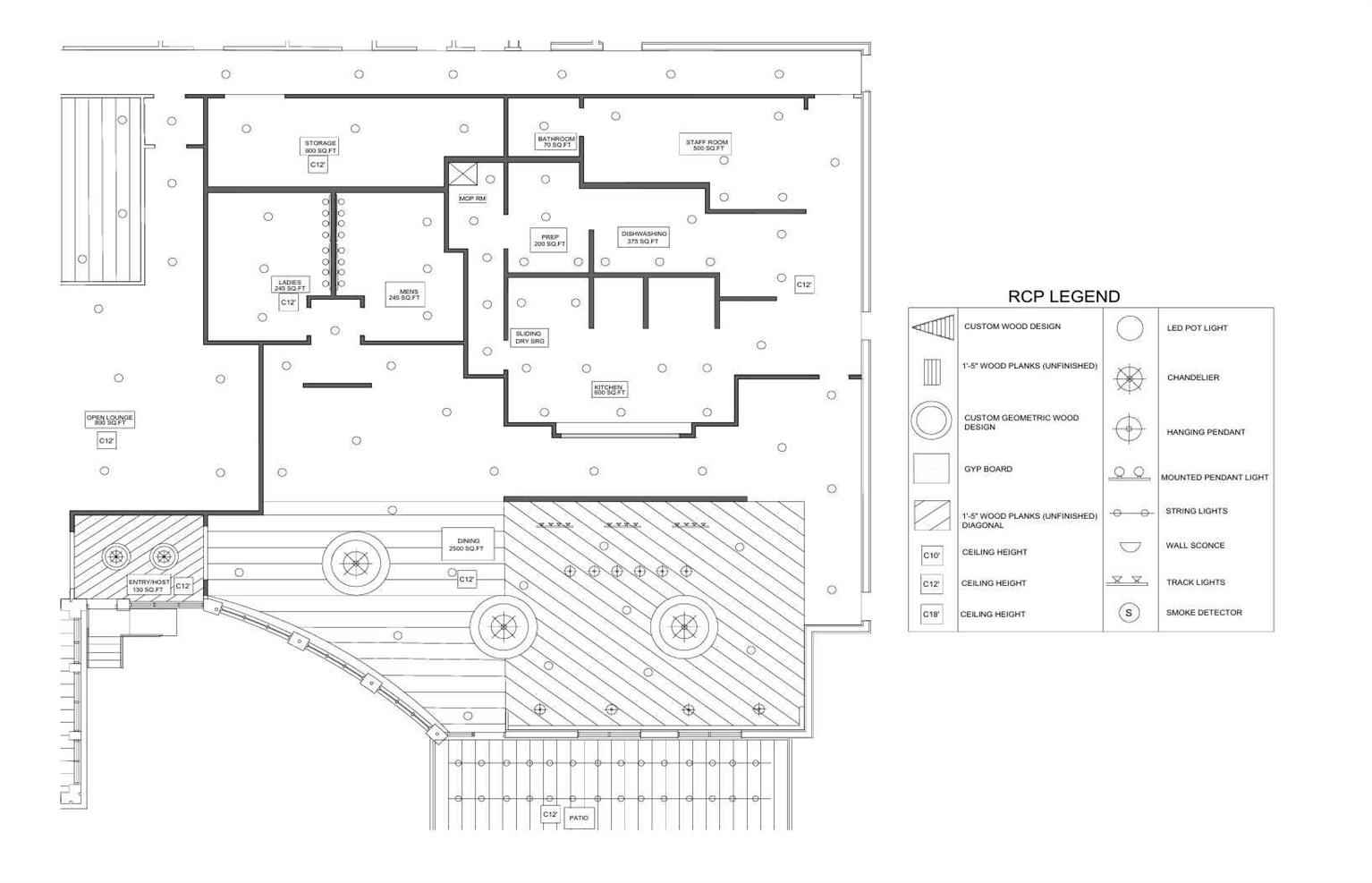
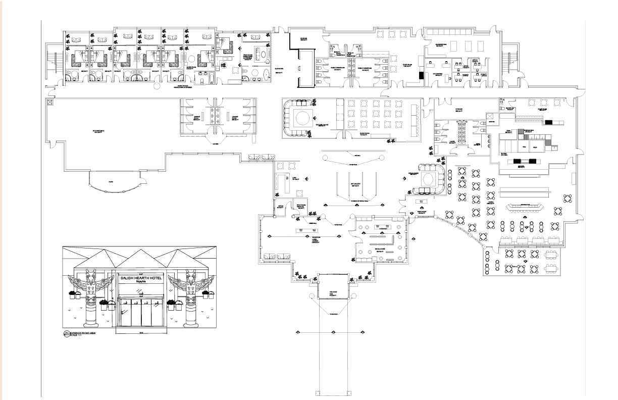
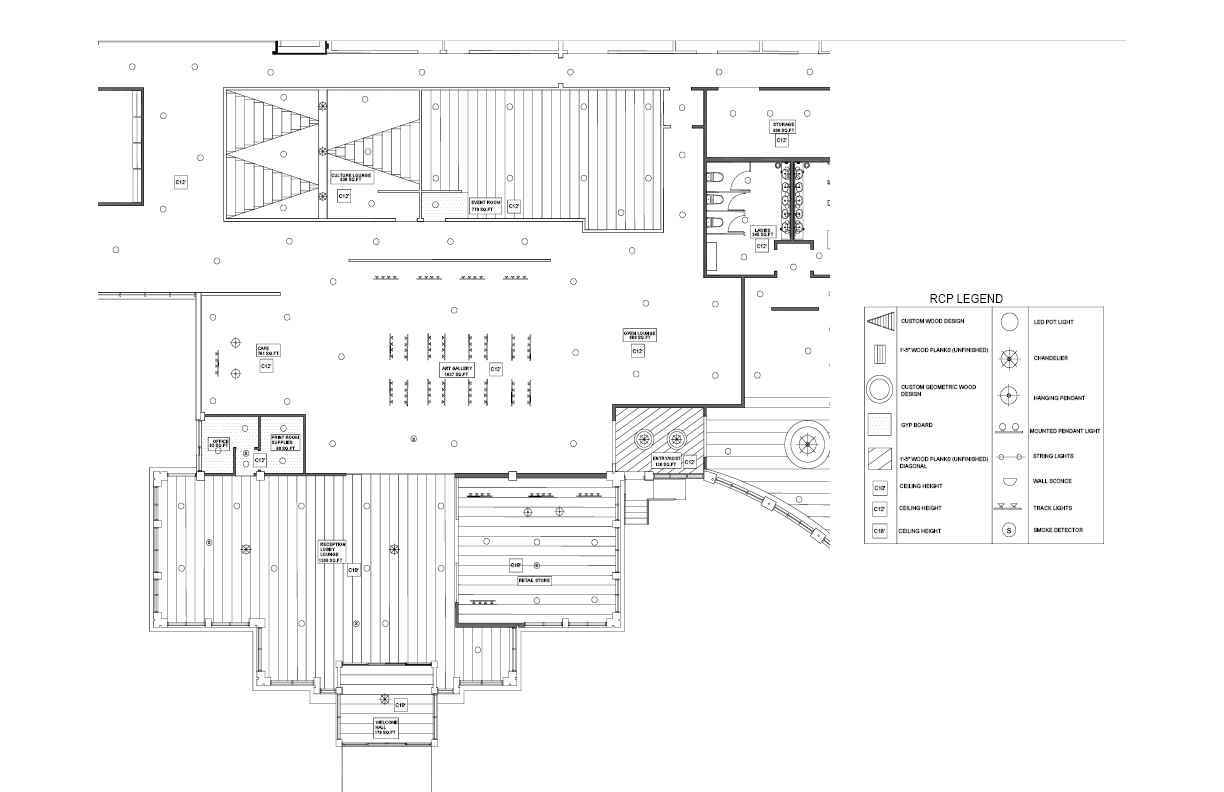
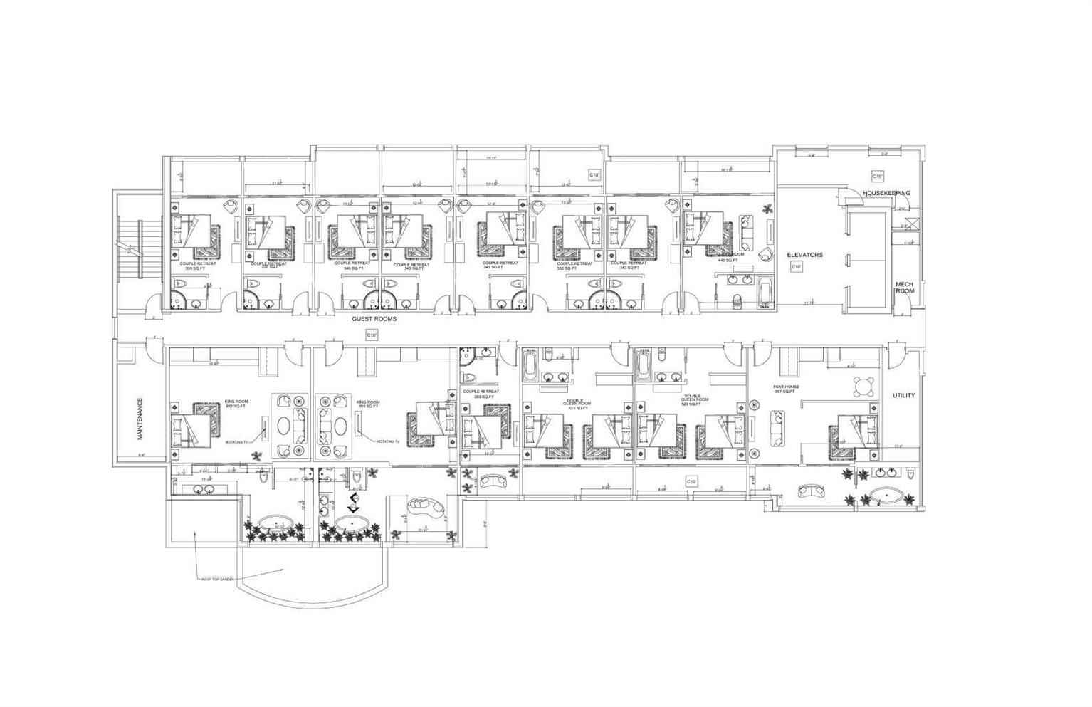
Each project will reflect a consistent aesthetic: warm, earthy tones, integrated indoor-outdoor flow, and a reverence for nature’s geometry. Adobe Published copy link: https://indd.adobe.com/view/148c5dd0-c000-4ee2-922d-40fb99eea898

Would you like to request more information?

Click on the button below and we'll get back to you as soon as possible.

Get in Touch with Us